Eigedom as har tilholdssted i Bø i Telemark og jobber fortrinnsvis i Telemark

Rauland - Hytter
Eigedom as setter opp hytter med høg standard i fornuftige prisklasser. Første hytte blei levert i 2021 og det jobbes kontinuerlig med nye hytter. 

Me leverer ferdige hytter på egne tomter.

Utleige
Utleigevirksomheten foregår i hovedsak i Bø med utleige av leiligheter. 

Det vil i perioder også være utleige av hytter.

Tjenester
Me tar på oss montering av kjøkken og garderober

Børte-til-nettsider-circle
Innehaver
Gisle Børte
TS-30
2021
Rådyrvegen 54 og Rådyrvegen 56, Rauland

TOMT 1.100.000 kr + omk

To flotte tomter med fantastisk beliggenhet for aktiviteter både sommer og vinter. 
Ca 100 meter til inngangen til Silkedalen med flotte skiløyper og nydelig turterreng med både korte og lange turmuligheter for store om små bein.
Alpinanlegget i Holtardalen ligger også tett inntil og er svært lett tilgjengelig for den fartsglade.
Tomtene er på ca 500m2 kvar.
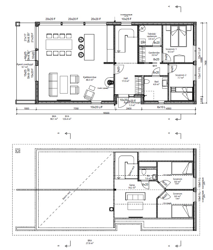
Om ønskelig kan det leveres hytte ferdig på tomt etter avtale. Tegningar på ferdig søkte hytter ligg under, men det er mulig å levere andre hytter om ønskelig.

Rådyrv 54 plan
RÅDYRVEGEN 54 EKSEMPEL PLANLØSNING
Rådyrv 54 illu
ILLUSTRASJON RÅDYRVEGEN 54
884_1663333414grenser
ILLUSTRASJON SJÅ KART FOR NØYAKTIGE GRENSER
884_720274036
UTSIKT UTOVER
884_843571860
SILKEDALEN RETT BAK TIL VENSTRE
Rådyrv 56 plan
RÅDYRVEGEN 56 EKSEMPEL PLANLØSNING
Rådyrv 56 illu
ILLUSTRASJON RÅDYRVEGEN 56